Información de contacto rápida

Somos una empresa peruana especializada en ingeniería eléctrica y electromecánica, orientada a brindar soluciones seguras, eficientes y confiables para los sectores industrial, comercial y minero en Lima y a nivel nacional.

icon_widget_image Lunes-Viernes: 8-am a 6-pm; Sabado: 8-am a 1-pm icon_widget_image Santiago de Surco - Lima 15056 icon_widget_image + (51) 999 662 806 + (51) 944 859 214 icon_widget_image tyf@tyfingenieria.com

No products in the cart.

  /  Electricidad en General   /  Planos Eléctricos, Diagrama Unifilar, Cuadro de Cargas

Planos Eléctricos, Diagrama Unifilar, Cuadro de Cargas

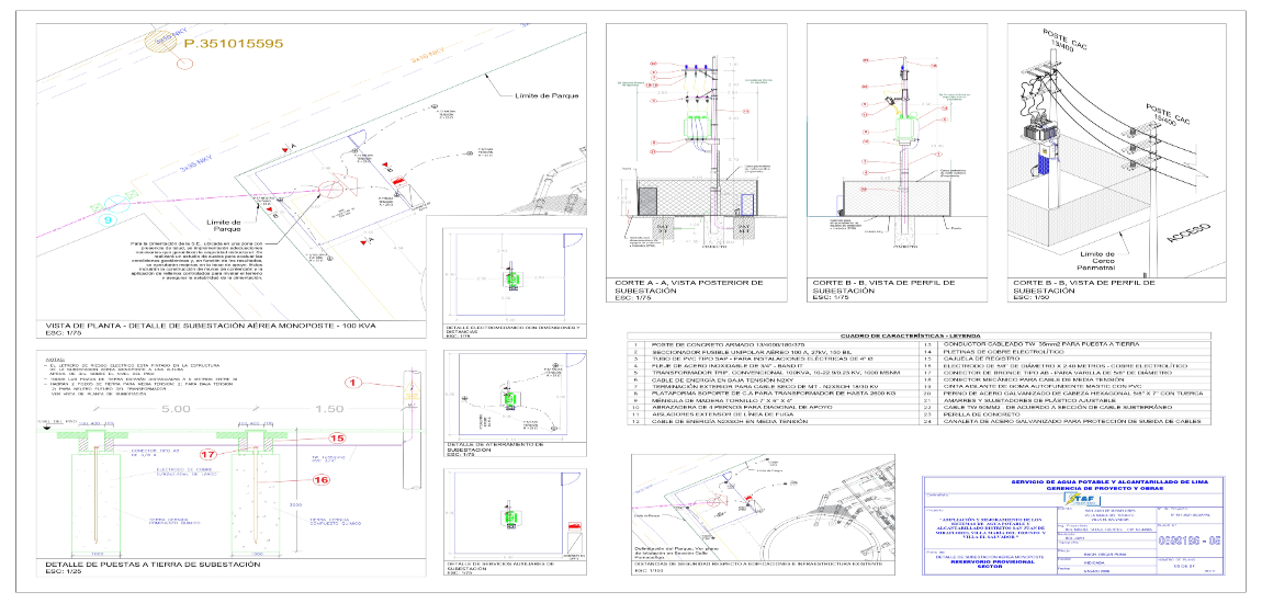
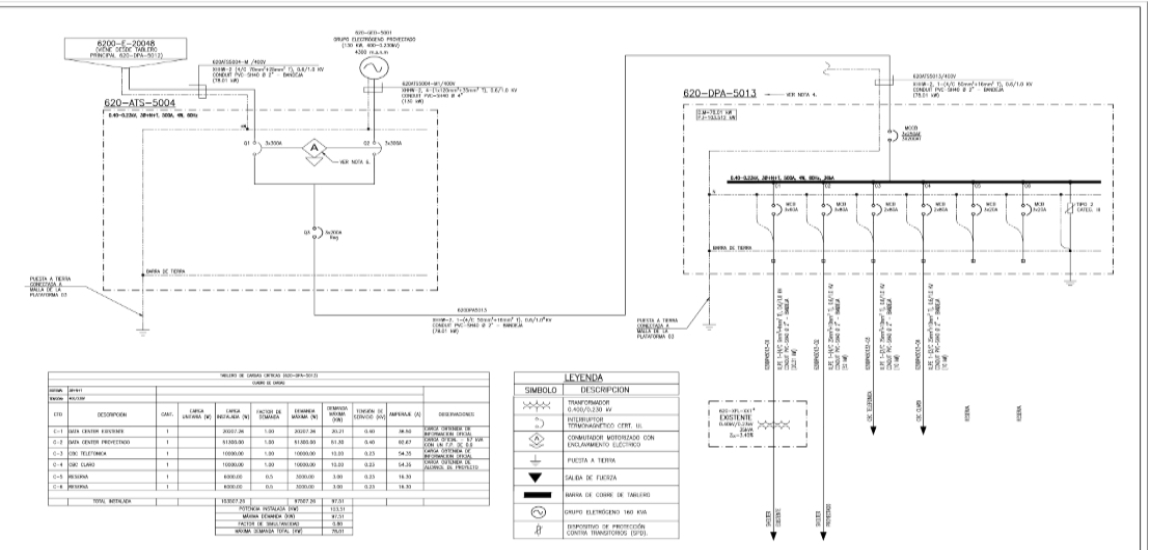
Elaboración de Planos Eléctricos, Diagramas Unifilares, Cuadros de Cargas, Determinación de la Demanda

En T&F Ingeniería Electromecánica SRL desarrollamos ingeniería electromecánica de alta precisión para cada proyecto.
Elaboramos planos eléctricos, diagramas unifilares, cuadros de carga y realizamos la determinación de la demanda, asegurando instalaciones seguras, eficientes y correctamente dimensionadas según el uso y las necesidades reales de cada operación.

Elaboración de planos eléctricos y mecánicos

Desarrollo de planos técnicos para instalaciones y equipos, elaborados con criterios de ingeniería para su correcta ejecución, mantenimiento y presentación en expedientes técnicos.

Diagramas unifilares

Representación clara del sistema eléctrico que muestra conexiones, equipos y protecciones, facilitando el análisis, operación y documentación técnica de la instalación.

Cálculos de cuadros de cargas

Determinación y balance de las cargas de la instalación para dimensionar correctamente conductores, protecciones y equipos del sistema.

Estimación de la demanda máxima

Análisis del consumo probable de la instalación según el tipo de actividad del edificio, permitiendo dimensionar adecuadamente la capacidad del sistema eléctrico.

Diagrama Unifilar
Planos Eléctricos
Elaboración de Plano Eléctrico